Monday-Friday 9.00 am - 18.00 pm
Saturday 12.00 pm - 17.00 pm

Textielstraat 110 & 112
5046 SG Tilburg, Noord-Brabant.
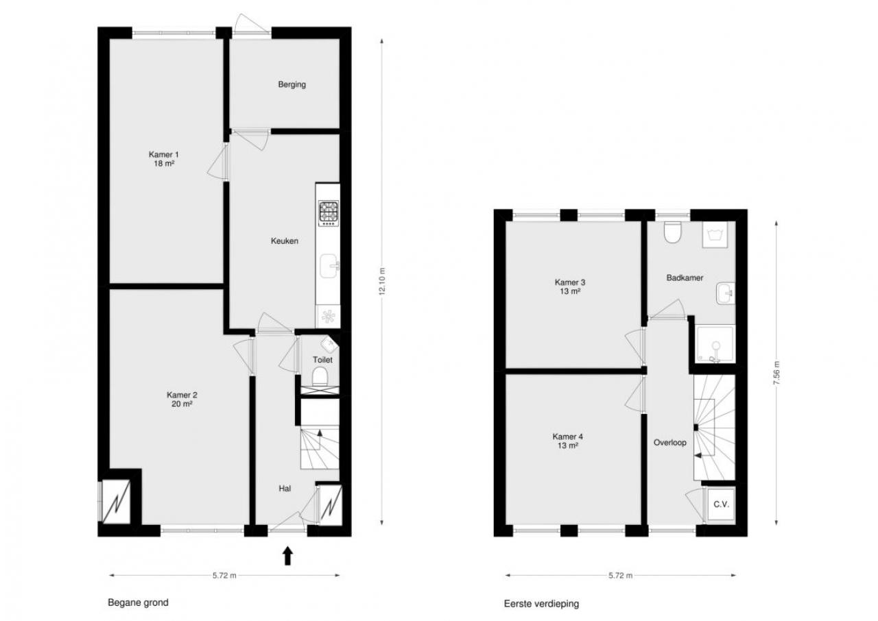
Twee kamerverhuurpanden van ieder circa 112 m² gelegen in de wijk Hasselt te Tilburg. Op korte afstand gelegen van diverse winkelvoorzieningen (zoals de ALDI en de PLUS) en het centrum van Tilburg alsmede de Universiteit zijn op circa 15 minuten fietsafstand gelegen.
De panden beschikken beide over een kamerverhuurvergunning voor maximaal 5 personen en kunnen leeg of in verhuurde staat worden opgeleverd. Verhuurd zal er sprake zijn van in totaal 7 onzelfstandige wooneenheden, waarbij 4 kamers in Textielstrat 112 en 2 luxe onzelfstandige wooneenheden in de Textielstraat 110. De totale prognose huur komt daarbijj uit op circa € 38.520,- netto per jaar.
Beide panden zijn vrijwel identiek qua lay out en de kamers variëren in grootte van 11 m² tot 22 m², met huurprijzen van € 300,- tot € 835,- (voor de luxe kamerverhuursituatie).
De panden zijn eventueel ook los van elkaar te koop met een koopsom per stuk van € 234.900,- k.k. Hierbij geschiedt de verkoop wel onder voorbehoud van kadastrale splitsing van de percelen.
We kindly request you to handle this property discretely and only inspect this property from the outside. A visit to the inside of the property or contact with the tenants is be arranged after coordination with Property Investments sales staff.
General |
|||||||||||||||||||||||||||||||||||||||||||||||||
| Country | The Netherlands | ||||||||||||||||||||||||||||||||||||||||||||||||
| Property type | Room rental property | ||||||||||||||||||||||||||||||||||||||||||||||||
| Last modified | Thursday 30th January 2020 | ||||||||||||||||||||||||||||||||||||||||||||||||
Property information |
|||||||||||||||||||||||||||||||||||||||||||||||||
| Parcel | 146 m2 | ||||||||||||||||||||||||||||||||||||||||||||||||
| Floor surface (inside) | 224 m2 Het betreft hier nadrukkelijk geen metrage conform NEN 2580. |
||||||||||||||||||||||||||||||||||||||||||||||||
| Cadastral | Gemeente Tilburg, sectie O, nummer 4995 | ||||||||||||||||||||||||||||||||||||||||||||||||
| Ownership information | Full ownership | ||||||||||||||||||||||||||||||||||||||||||||||||
| Year of construction | 1949 | ||||||||||||||||||||||||||||||||||||||||||||||||
| Location | Goed | ||||||||||||||||||||||||||||||||||||||||||||||||
| Energy label | F | ||||||||||||||||||||||||||||||||||||||||||||||||
Contractual information |
|||||||||||||||||||||||||||||||||||||||||||||||||
| Rental information | De panden worden leeg opgeleverd, indien gewenst kan het pand ook in verhuurde staat worden opgeleverd conform de prijzen zoals geprognosticeerd.
|
||||||||||||||||||||||||||||||||||||||||||||||||
Investment profile |
|||||||||||||||||||||||||||||||||||||||||||||||||
| Rent | € 38.520,00 netto huur per jaar | ||||||||||||||||||||||||||||||||||||||||||||||||
| Purchase price | € 449.500,- k.k. totaal / € 239.900,- k.k. per stuk | ||||||||||||||||||||||||||||||||||||||||||||||||
| Factor | 11,7 | ||||||||||||||||||||||||||||||||||||||||||||||||
Other information |
|||||||||||||||||||||||||||||||||||||||||||||||||
| Additional information | Algemeen: |
||||||||||||||||||||||||||||||||||||||||||||||||
Contact |
|||||||||||||||||||||||||||||||||||||||||||||||||
| Property offered by | Algemeen |
||||||||||||||||||||||||||||||||||||||||||||||||
| Contact directly |
Click the button to add this property to my personal portfolio. Your portfolio will be stored on your device with the help of a cookie that will be stored for 3 months. This cookie does not harm your online privacy or security in any way.
Click the button to show your personal portfolio. Your portfolio will be stored on your device with the help of a cookie that will be stored for 3 months. This cookie does not harm your online privacy or security in any way.
Use the form below to request more information about this property investment.
Any personal information entered will only be used to handle your request.
This form is protected by reCAPTCHA and the Google Privacy Policy and Terms of Service apply.
Deze presentatie is met zorg samengesteld uit informatie die van de aanbieder van het beleggingspand afkomstig is. Beleggingspanden.nl biedt deze informatie daarom aan zonder enige vorm van garantie of aanspraak op juistheid en volledigheid. Beleggingspanden.nl biedt zelf geen onroerend goed aan. Deze presentatie is een uitnodiging om via Beleggingspanden.nl met de aanbieder van het beleggingspand in contact te komen.