Monday-Friday 9.00 am - 18.00 pm
Saturday 12.00 pm - 17.00 pm

Op aanvraag
Urk, Flevoland.
Dit object is gelegen op een zichtlocatie, op het bedrijventerrein van Urk, aan een doorgaande weg gelegen bedrijfshal en magazijnruimte met entresol en inpandige kantoorruimte.
Bouwaard:
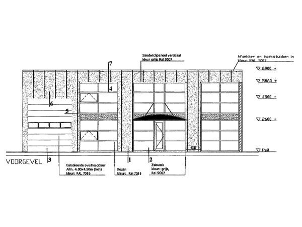
Begane grond: betonnen vloer, betonnen verdiepingsvloer, stalen constructie, bitumen dakbedekking, sandwichpanelen gevels, geïsoleerde wandpanelen en voorzien van aluminium kozijnen.
Installaties: gas, water, elektriciteit (waaronder krachtstroom), riolering, alarminstallatie, vloerverwarming op de begane grond, klimaatbeheersing op de verdieping. Verder is het pand voorzien van een aardwarmte systeem.
Bijzonderheden:
- Bestemming “Bedrijven niet visverwerkend B(II)”.
- Parkeergelegenheid op eigen terrein.
- Goede bereikbaarheid.
We kindly request you to handle this property discretely and only inspect this property from the outside. A visit to the inside of the property or contact with the tenants is be arranged after coordination with Property Investments sales staff.
General |
|
| Country | The Netherlands |
| Property type | Commercial building |
| Last modified | Sunday 28th October 2007 |
Property information |
|
| Parcel | 1.410 m2 |
| Floor surface (inside) | Bebouwde oppervlakte. ± 30 meter x 20 meter. Oppervlakten: |
| Cadastral | Gemeente Urk, sectie D, nummer 1401. |
| Ownership information | Full ownership |
| Year of construction | 2007, oplevering oktober 2007 |
| Location | Goed bereikbaar pand ligt aan doorgaande weg op zichtlocatie. |
Contractual information |
|
| Rental status | Fully rented |
| Rental information | De huurder betreft een installatie bedrijf. Het 5 jarige huurcontract is ingegaan op 1 april 2007 en eindigd op 1 april 2012 met een optie van 5 jaar dehalve eindigend op 1 april 2017. |
| Index linking (description) | Jaarlijks. |
Investment profile |
|
| Rent | € 60.000,00 per jaar, excl. BTW. |
| Purchase price | Op aanvraag. |
Other information |
|
| Additional information | |
Contact |
|
| Property offered by | Algemeen |
| Contact directly |
Click the button to add this property to my personal portfolio. Your portfolio will be stored on your device with the help of a cookie that will be stored for 3 months. This cookie does not harm your online privacy or security in any way.
Click the button to show your personal portfolio. Your portfolio will be stored on your device with the help of a cookie that will be stored for 3 months. This cookie does not harm your online privacy or security in any way.
Use the form below to request more information about this property investment.
Any personal information entered will only be used to handle your request.
This form is protected by reCAPTCHA and the Google Privacy Policy and Terms of Service apply.
Deze presentatie is met zorg samengesteld uit informatie die van de aanbieder van het beleggingspand afkomstig is. Beleggingspanden.nl biedt deze informatie daarom aan zonder enige vorm van garantie of aanspraak op juistheid en volledigheid. Beleggingspanden.nl biedt zelf geen onroerend goed aan. Deze presentatie is een uitnodiging om via Beleggingspanden.nl met de aanbieder van het beleggingspand in contact te komen.