Property-investments.com
Sign in | Join
Beleggingspand Maastricht

Maastricht, Brusselsestraat 122 & 122B

Brusselsestraat 122 & 122B
6211 PH Maastricht, Limburg.

Sold Sold  € 452.661,- K.K.

Dit geheel gerenoveerde beleggingspand van circa 116 m² betreft een winkelruimte met bovenwoning in de historische binnenstad van Maastricht. De begane grond is in gebruik als kapsalon en de bovenwoning wordt verhuurd aan studenten. De omgevingsvergunning en gebruikersvergunning ten behoeve van kamerverhuur zijn aanwezig. 

Het pand beschikt over een gemeenschappelijke entree/hal op de parterre met een geheel gerenoveerd trappenhuis in moderne stijl. De vloeren in de kamers en hallen zijn voorzien van eiken parketvloer in de kleur Noble Brown. Het gehele pand evenals de gemeenschappelijke ruimtes zijn voorzien van glad gestukadoorde wanden en plafonds. De voordeur is voorzien van een intercominstallatie.

Het object is op zeer korte afstand van de universiteit gelegen. Zowel in de levendige Brusselsestraat als in de directe en nabije omgeving bevinden zich diverse uitgaansgelegenheden waar onder theaters, bioscopen, restaurants en gezellige cafés. Het mooie Vrijthof met aansluitend het vermaarde kernwinkelgebied ligt om de hoek.

De roerende zaken (meubilair, wasmachine en droger) ter waarde van ca.  € 17.000 worden meeverkocht en zijn bij de koopsom inbegrepen. 

Indeling:
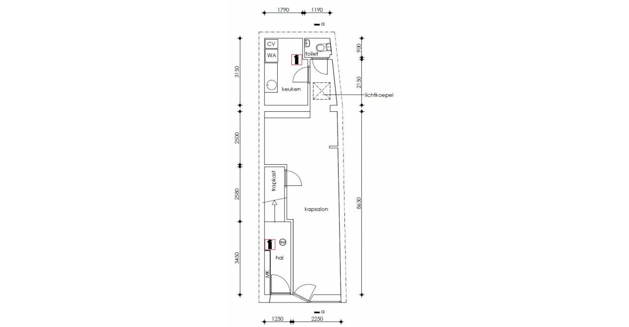
Begane grond: volledig zelfstandige kapsalon met aparte ingang. Voorzien van keuken, toilet e.d.

Eerste verdieping: compleet ingerichte keuken, voorzien van granieten werkblad, r.v.s. spoelbak, inductiekookplaat, afzuigkap, combimagnetron/oven, koelkast met vriesvak en vaatwasser. Vanuit de keuken is er toegang tot het terras. Op de eerste verdieping bevindt zich ook de grootste slaapkamer met badkamermeubel en wastafel.

Tweede verdieping: mooie betegelde badkamer met inloopdouche, badkamermeubel met twee vaste wastafels en wasmachine en droger aanwezig. Er is één toilet in de badkamer en één separaat toilet in de hal. De kranen en sanitair zijn van topkwaliteit.

Derde verdieping: twee slaapkamers met badkamermeubel en wastafel. Bergruimte alwaar opstelling cv-combiketel.

We kindly request you to handle this property discretely and only inspect this property from the outside. A visit to the inside of the property or contact with the tenants is be arranged after coordination with Property Investments sales staff.

General

 
Country The Netherlands
Property type Retail / housing
Last modified Monday 20th November 2017

Property information

 
Floor surface (inside) 116 m2

Kamer 1: 17 m² 
Kamer 2: 14,2 m²
Kamer 3: 13,2 m²
Kamer 4: 11,2 m²

Cadastral Gemeente Maastricht, sectie A, nummer 549
Ownership information Full ownership
Year of construction 1872

Contractual information

 
Rental status Fully rented
Rental information

Kapsalon: € 671,08 
Kamer 1: € 500,00
Kamer 2: € 495,00
Kamer 3: € 430,22
Kamer 4: € 425,13
Totale bruto huursom: € 2.521,43 per maand / € 30.257,16 per jaar 

Kosten G/W/L: € 3.630,- per jaar 

Totale huursom na aftrek G/W/L: € 26.627,16 per jaar 


Investment profile

 
Rent Available on request
Purchase price € 452.661,- K.K.
Factor Available on request

Other information

 
Additional information

Monument: 
Het betreft een beschermd stadsgezicht. 

Servicecontracten:
Verhuurder is contractant met alle nutsleveranciers. 

Algemeen:
Gemeente Maastricht
Internet: Gemeente Maastricht
Inwoners: ca. 122.500 
Oppervlakte: ca. 60.06 km²


Contact

 
Property offered by Beleggingspanden.nl
de heer Tobias de Graaf
Laan der Hesperiden 68
1076 DX AMSTERDAM
Telephone: 030 - 225 31 12
Contact directly
Reactie Send a reaction by online form

Photos

Beleggingspand Maastricht Maastricht, Brusselsestraat 122 & 122B Maastricht, Brusselsestraat 122 & 122B Maastricht, Brusselsestraat 122 & 122B Maastricht, Brusselsestraat 122 & 122B Maastricht, Brusselsestraat 122 & 122B Maastricht, Brusselsestraat 122 & 122B Maastricht, Brusselsestraat 122 & 122B Maastricht, Brusselsestraat 122 & 122B Maastricht, Brusselsestraat 122 & 122B Maastricht, Brusselsestraat 122 & 122B Maastricht, Brusselsestraat 122 & 122B Maastricht, Brusselsestraat 122 & 122B Maastricht, Brusselsestraat 122 & 122B Maastricht, Brusselsestraat 122 & 122B Maastricht, Brusselsestraat 122 & 122B Maastricht, Brusselsestraat 122 & 122B Maastricht, Brusselsestraat 122 & 122B Maastricht, Brusselsestraat 122 & 122B Maastricht, Brusselsestraat 122 & 122B Maastricht, Brusselsestraat 122 & 122B

Drawings and maps

Maastricht, Brusselsestraat 122 & 122B Maastricht, Brusselsestraat 122 & 122B Maastricht, Brusselsestraat 122 & 122B Maastricht, Brusselsestraat 122 & 122B

Map


Map
Add to my personal portfolio

Add to my personal portfolio

Click the button to add this property to my personal portfolio. Your portfolio will be stored on your device with the help of a cookie that will be stored for 3 months. This cookie does not harm your online privacy or security in any way.

Show my personal portfolio

Show my personal portfolio

Click the button to show your personal portfolio. Your portfolio will be stored on your device with the help of a cookie that will be stored for 3 months. This cookie does not harm your online privacy or security in any way.

Reactie


Use the form below to request more information about this property investment.
Any personal information entered will only be used to handle your request.

Property:

Maastricht

Brusselsestraat 122 & 122B, Maastricht
Your name:
Your phone number:
Your e-mail address:
Your request for information:
 

This form is protected by reCAPTCHA and the Google Privacy Policy and Terms of Service apply.

Deze presentatie is met zorg samengesteld uit informatie die van de aanbieder van het beleggingspand afkomstig is. Beleggingspanden.nl biedt deze informatie daarom aan zonder enige vorm van garantie of aanspraak op juistheid en volledigheid. Beleggingspanden.nl biedt zelf geen onroerend goed aan. Deze presentatie is een uitnodiging om via Beleggingspanden.nl met de aanbieder van het beleggingspand in contact te komen.