Monday-Friday 9.00 am - 18.00 pm
Saturday 12.00 pm - 17.00 pm

Pretoriusstraat 21
1092 EX Amsterdam, Noord-Holland.
Winkelbelegging, gelegen in de Transvaalbuurt tussen de Linnaeusstraat en het Steve Bikoplein. Het object is verhuurd.
In de nabije omgeving vindt men o.a. het Kruidvat, De Kwekkeboom Patisserie, Pearl
Opticiens en de Hema. Even verderop zijn het Oosterpark en het Tropenmuseum gelegen.
We kindly request you to handle this property discretely and only inspect this property from the outside. A visit to the inside of the property or contact with the tenants is be arranged after coordination with Property Investments sales staff.
General |
|
| Country | The Netherlands |
| Property type | Retail |
| Last modified | Wednesday 18th September 2013 |
Property information |
|
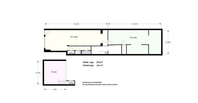
| Floor surface (inside) | 172 m2 De winkel is ca. 26,5 meter diep en 5,5 meter breed en is ongeveer 145 m² groot. |
| Cadastral | Gemeente Amsterdam, sectie WW, nummer 7982 A1. |
| Ownership information | Full ownership |
| Location | Goed. Prima tramverbinding (tram 12 en 25) en busverbinding (bus 15). Treinen en metro zijn op relatief korte afstand te bereiken (station Amstel en station Rai). |
Contractual information |
|
| Rental status | Fully rented |
| Rental information | De huurovereenkomst is ingegaan op 1 februari 2012, voor de duur van 3 jaar, tot en met 31 januari 2015. Vervolgens verlenging voor 2 jaar. Aanvangshuurprijs: € 15.600,- per jaar. (geen BTW) (Huurder heeft een huurvrije huurperiode tot en met 30 juni 2012 als tegemoetkoming voor de nodige interne reparaties. Huurder zal tevens zelf een CV-installatie aanleggen.) |
| Tenants | Ortech Satelliet Shop |
| Index linking (description) | Jaarlijks |
Investment profile |
|
| Rent | € 15.600,00 per jaar. (geen BTW) |
| Purchase price | € 187.500,- K.K. |
| Factor | 12,0 |
Other information |
|
| Additional information | VvE: Gemeente: |
Contact |
|
| Property offered by | Beleggingspanden.nl de heer Ronald Nuijt Laan der Hesperiden 68 1076 DX AMSTERDAM Telephone: 030 - 225 31 12 |
| Contact directly |
Click the button to add this property to my personal portfolio. Your portfolio will be stored on your device with the help of a cookie that will be stored for 3 months. This cookie does not harm your online privacy or security in any way.
Click the button to show your personal portfolio. Your portfolio will be stored on your device with the help of a cookie that will be stored for 3 months. This cookie does not harm your online privacy or security in any way.
Use the form below to request more information about this property investment.
Any personal information entered will only be used to handle your request.
This form is protected by reCAPTCHA and the Google Privacy Policy and Terms of Service apply.
Deze presentatie is met zorg samengesteld uit informatie die van de aanbieder van het beleggingspand afkomstig is. Beleggingspanden.nl biedt deze informatie daarom aan zonder enige vorm van garantie of aanspraak op juistheid en volledigheid. Beleggingspanden.nl biedt zelf geen onroerend goed aan. Deze presentatie is een uitnodiging om via Beleggingspanden.nl met de aanbieder van het beleggingspand in contact te komen.