Monday-Friday 9.00 am - 18.00 pm
Saturday 12.00 pm - 17.00 pm

Amsterdamseweg 166
1182 HK Amstelveen, Noord-Holland.
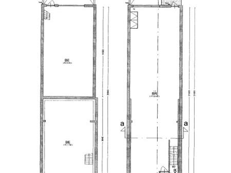
Beleggingsobject gelegen in Amstelveen. Een ruime winkelruimte gelegen aan de Amsterdamseweg van circa 220 m².
De ruimte is verdeeld over twee niveau's en beschikt over een zeer ruime kelder. Nabij het Amsterdamse Bos
en verschillende winkels is dit object zeer centraal gelegen.
We kindly request you to handle this property discretely and only inspect this property from the outside. A visit to the inside of the property or contact with the tenants is be arranged after coordination with Property Investments sales staff.
General |
|
| Country | The Netherlands |
| Property type | Retail |
| Last modified | Wednesday 31st March 2010 |
Property information |
|
| Parcel | 153 m2 |
| Floor surface (inside) | Totale oppervlakte circa 220 m², verdeeld over twee niveau's. Begane grond van circa 111 m²; Aan de achterzijde bevinden zich nog 3 percelen grond. Indeling: De opslagruimte van circa 62,5 m² is gelegen aan de achterzijde van de Amsterdamseweg te Amstelveen. |
| Cadastral | Gemeente Amstelveen, sectie H, nummer 17437 - A1 en A2. |
| Location | Goed. |
Contractual information |
|
| Rental information | Huurder: Oorwerk v.o.f. (hoortoestellen) Voor meer informatie: www.oorwerk.nl Opslagruimte: leeg Netto huursom bedraagt momenteel € 33.500 per jaar excl. BTW. Bij volledige verhuur bedraagt huuropbrengst €37.500,- per jaar ex BTW (prognose). |
Investment profile |
|
| Purchase price | € 475.000,- kosten koper |
Other information |
|
| Additional information | BESTEMMING: LIGGING: VOORZIENINGEN: BEREIKBAARHEID: PARKEREN: ACHTERZIJDE: SERVICEKOSTEN: KADASTRALE GEGEVENS: ALGEMEEN: |
Contact |
|
| Property offered by | Beleggingspanden.nl De heer Y. Hanasbei Business Development Telephone: 030 - 225 31 12 Fax: 030 - 225 80 23 |
| Contact directly |
Click the button to add this property to my personal portfolio. Your portfolio will be stored on your device with the help of a cookie that will be stored for 3 months. This cookie does not harm your online privacy or security in any way.
Click the button to show your personal portfolio. Your portfolio will be stored on your device with the help of a cookie that will be stored for 3 months. This cookie does not harm your online privacy or security in any way.
Use the form below to request more information about this property investment.
Any personal information entered will only be used to handle your request.
This form is protected by reCAPTCHA and the Google Privacy Policy and Terms of Service apply.
Deze presentatie is met zorg samengesteld uit informatie die van de aanbieder van het beleggingspand afkomstig is. Beleggingspanden.nl biedt deze informatie daarom aan zonder enige vorm van garantie of aanspraak op juistheid en volledigheid. Beleggingspanden.nl biedt zelf geen onroerend goed aan. Deze presentatie is een uitnodiging om via Beleggingspanden.nl met de aanbieder van het beleggingspand in contact te komen.